Как купить квартиру от застройщика с просторной планировкой

Прежде чем выбирать квартиры в Туле в новостройках от застройщика, стоит внимательно изучить планировки. Общая площадь, расположение комнат, размер кухни и ванной комнаты, ширина коридора – все это напрямую влияет на комфорт проживания. При разработке планировок в квартирах жилого комплекса «Времена года» архитекторы избавились от концепции квартир, где негде развернуться и каждый метр на счету. Мы создали жилье, в котором каждый будет чувствовать себя свободно. Типы планировок Для начала разберемся, какие существуют планировочные решения. Планировки квартир домов от современных застройщиков бывают нескольких типов:

  • Студия. Изолирована только ванная комната, коридор переходит в гостиную с неразделенной перегородкой кухней. Такие квартиры от застройщика – это бюджетный вариант для молодой пары или одного человека.
  • Изолированные комнаты. Все комнаты изолированы друг от друга и от коридора. Самый комфортный и удобный вариант планировки квартиры для семьи с детьми. Никто никого не беспокоит, каждый находится в личном пространстве. Именно такие планировки 1,2,3-комнатных квартир были в приоритете у наших архитекторов, разработавших ЖК «Времена года».
  • Смежные комнаты. Чаще всего такой бывает планировка 2-комнатной квартиры. Одна комната имеет выход в коридор, а в другую можно попасть только через первую. Современные застройщики отказались от таких планировок, поскольку они неудобны.
  • Свободная планировка. В пространстве квартиры стены обозначены периметром в один кирпич высотой. Будущим жильцам предстоит проявить фантазию и самим решить, как они поделят площадь на комнаты и функциональные зоны.
  • Smart – планировка. Функционал таких планировок на 40% выше, чем в обычных квартирах, поскольку рационально используется каждый квадратный метр пространства. Несущие конструкции находятся лишь в общем каркасе дома, поэтому можно легко менять планировку под себя.
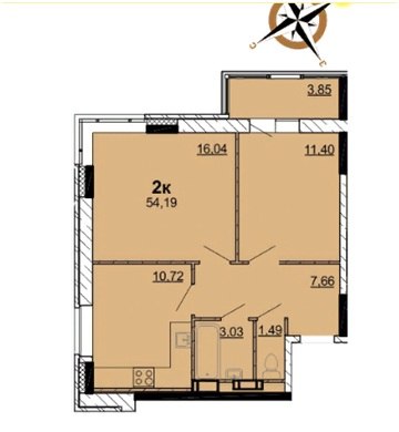
Однокомнатные квартиры в ЖК «Времена года» Планировка 1-комнатной квартиры в ЖК «Времена года» рассчитана так, чтобы будущие жильцы чувствовали себя свободно и просторно. Жилая комната достаточно большая, поэтому ее можно поделить на функциональные зоны: рабочая, для сна и для отдыха. Площадь таких квартир в жилом комплексе варьируется от 34 до 42 квадратных метров. Однокомнаятные квартиры в ЖК Времена годаПример планировки 1-комнатной квартиры с площадью 35,46 кв. м Кухня изолирована от жилой комнаты полноценной стеной. Санузел совмещенный и достаточно большой, чтобы в нем поместилась ванна и стиральная машина. Кухня тоже рассчитана с учетом удобства жильцов, которые смогут разделить ее на зону приготовления пищи и столовую. Небольшая лоджия позволит создать дополнительное место для отдыха или хранения вещей. Двухкомнатная квартира во «Временах года» Планировка 2-комнатной квартиры в ЖК «Времена года» имеет изолированные комнаты. Просторная кухня, большая лоджия, коридор, где хватит места для шкафа купе, – все это наши архитекторы продумали для вас. Вы можете купить такую квартиру в Туле от застройщика с площадью от 49 до 54 кв. м. Двухкомнатные квартиры в ЖК "Времена года"Пример планировки 2-комнатной квартиры с площадью 54,19 кв. м. Предполагается, что в двухкомнатной квартире проживает 2-3 человека. Чтобы всем было удобно, мы предусмотрели раздельную ванную и туалет. Жильцы могут сами определить назначение двух комнат: сделать гостиную и спальню, либо родительскую спальню и детскую. Мы создали жилье, в котором достаточно места для мебели, необходимых вещей и свободного пространства. Наши двушки хорошо спроектированы, и в них не бывает тесно. Трехкомнатные квартиры в ЖК «Времена года» Планировки 3-комнатных квартир в ЖК «Времена года» самые комфортабельные. Все комнаты изолированы друг от друга. Такие квартиры от застройщика в Туле подойдут семьям с двумя детьми или тем, кто хочет отдельную гостиную и две спальни. Площади варьируются от 70-75 кв. м. Большие трешки – это неограниченные возможности для дизайнерских решений. Трехкомнатные квартиры в ЖК "Времена года" Тула Пример 3-комнатной квартиры площадью 74 кв. м Просторный коридор, кладовая, раздельный санузел, большая лоджия и кухня, где достаточно места для приготовления пищи и приема гостей – все это входит в проект трешек в ЖК «Времена года». Такие квартиры считаются жильем повышенной комфортности. Купить квартиру с просторной планировкой в ЖК «Времена года» Главное преимущество наших квартир в том, что они не просто отлично продуманы и просторны, они стоят недорого. В среднем квадратный метр жилья в ЖК «Времена года» обойдется в 39.000 т.р. А выгодные условия ипотеки от застройщика сделают приобретение собственной квартиры еще проще. Вы можете увидеть все планировки на официальном сайте жилого комплекса «Времена года» vremen.ru. Там же вы узнаете, какие квартиры сейчас в наличии и их актуальную стоимость. Необходимо больше информации? Наши специалисты отдела продаж с удовольствием вас проконсультируют. Звоните по номеру +7 (4872) 25-51-51 или заказывайте обратный звонок на сайте. Наш офис продаж расположен по адресу ул. Фрунзе, 20. Приходите к нам и получите личную консультацию. Ждем вас с 9.00 до 18.00 с понедельника по пятницу.

Сетевое издание «Cod71.ru» Учредитель: Майоров Роман Евгеньевич. Главный редактор: Сыроежкина Анна Николаевна. Адрес: 430004, Республика Мордовия, город Саранск, ул. Кирова, д.63 Тел.: +7 929 747 33 89. Эл. почта: newscod@yandex.ru Знак информационной продукции: 18+